VILLA
190m²
Le projet
Réalisation du projet uniquement à partir des dimensions du terrain
- Réaliser les plans de base de la maison afin de visualiser le design de la façade imaginé par le client
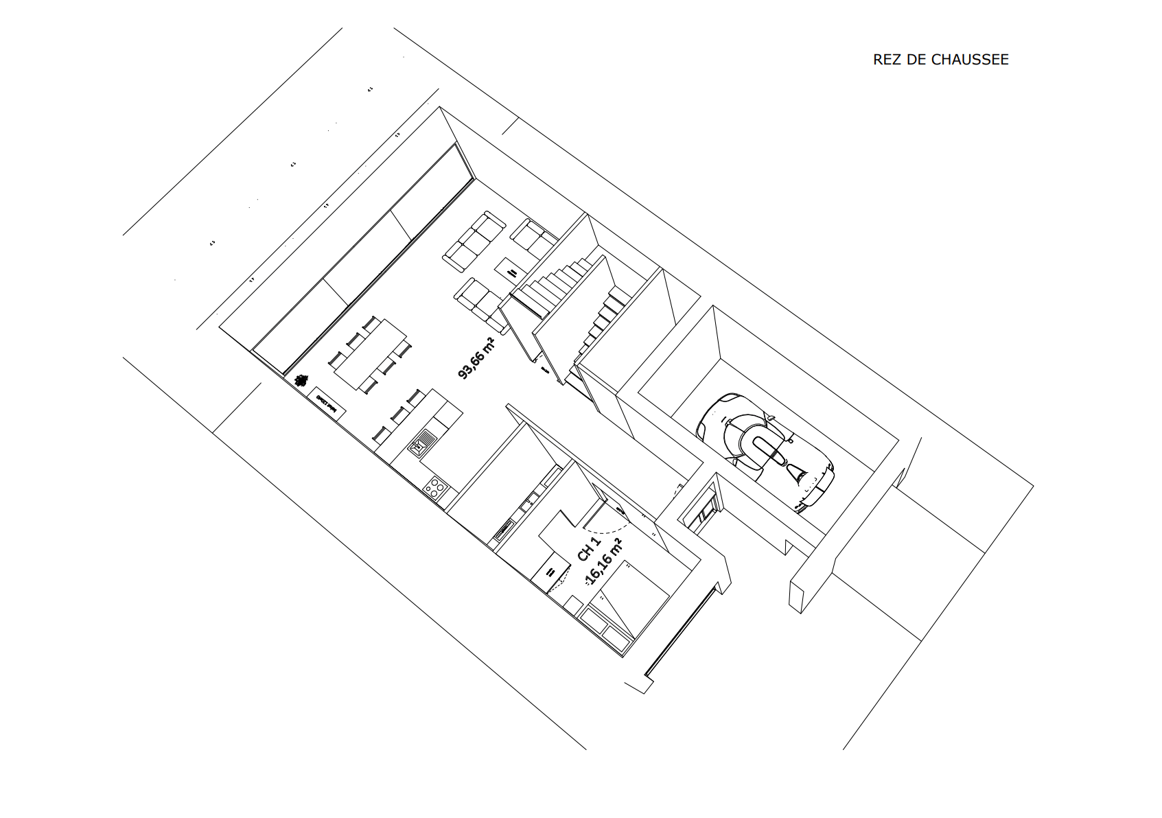
- Aménagement du rez-de-chaussée :
Séjour, salle à manger, cuisine ouverte, un toilette, une chambre avec salle d'eau et un cellier
- Aménagement de l'étage :
3 chambres avec lit double, salle d'eau et rangements + dont une chambre parentale avec salle de bain et toilette
projet villa
Conception de plans 2D et 3D - 190 m²
Titre de la diapositive
Écrivez votre légende iciBouton
Le projet :
Réalisation du projet uniquement à partir des dimensions du terrain
- Réaliser les plans de base de la maison afin de visualiser le design de la façade imaginé par le client
- Aménagement du rez-de-chaussée :
Séjour, salle à manger, cuisine ouverte, un toilette, une chambre avec salle d'eau et un cellier
- Aménagement de l'étage :
3 chambres avec lit double, salle d'eau et rangements + dont une chambre parentale avec salle de bain et toilette







