projet chambre independante
17 m²
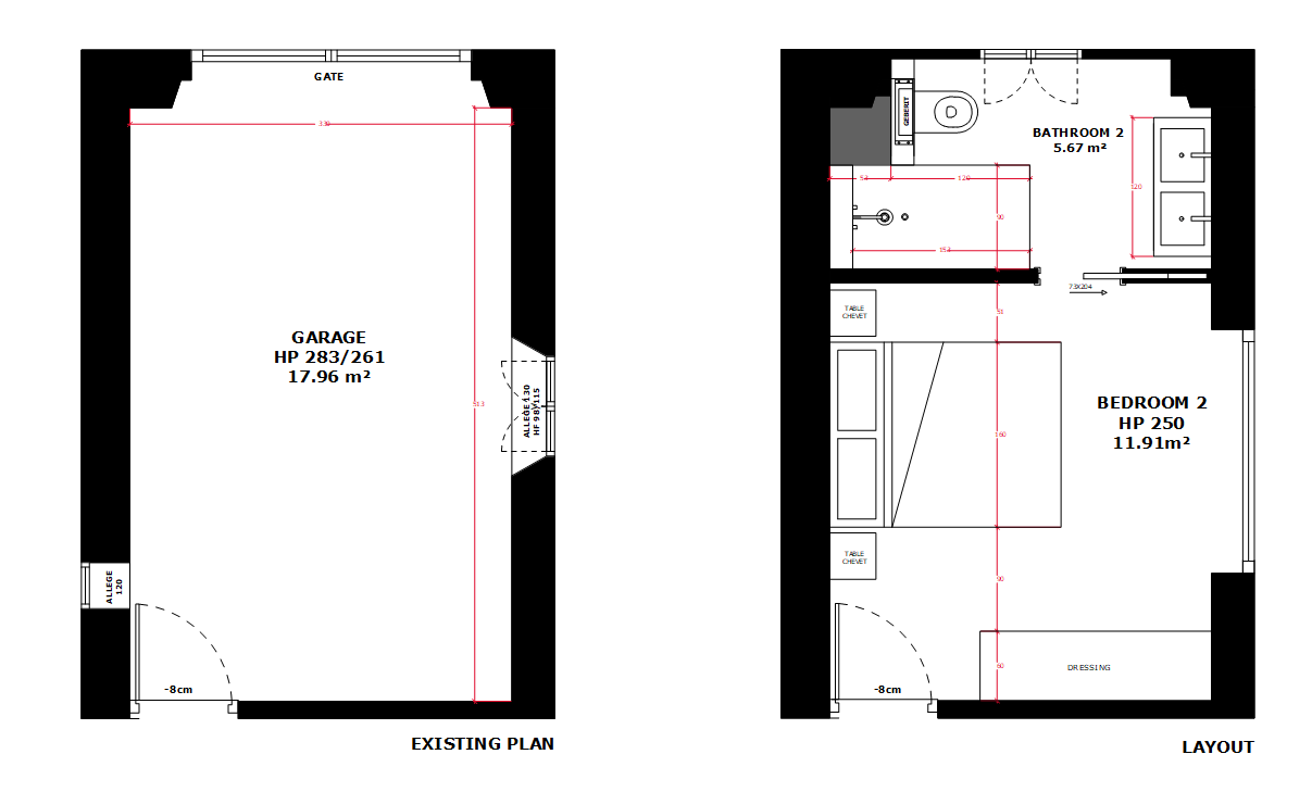
Le projet :
- Transformer un garage en une chambre indépendante, comprenant une salle d'eau avec toilette
- Créer un accès par l'extérieur de la maison

Le projet :
- Transformer un garage en une chambre indépendante, comprenant une salle d'eau avec toilette
- Créer un accès par l'extérieur de la maison

© Copyright Impactdeco.fr 2017
© Copyright Impactdeco.fr 2017 par Sarah Vidal
Impact Déco / Sarah Vidal /
Villefranche sur mer
sarah.impactdeco@gmail.com
06 01 30 68 70
© Copyright Impactdeco.fr 2017 par Sarah Vidal
© Copyright Impactdeco.fr 2017