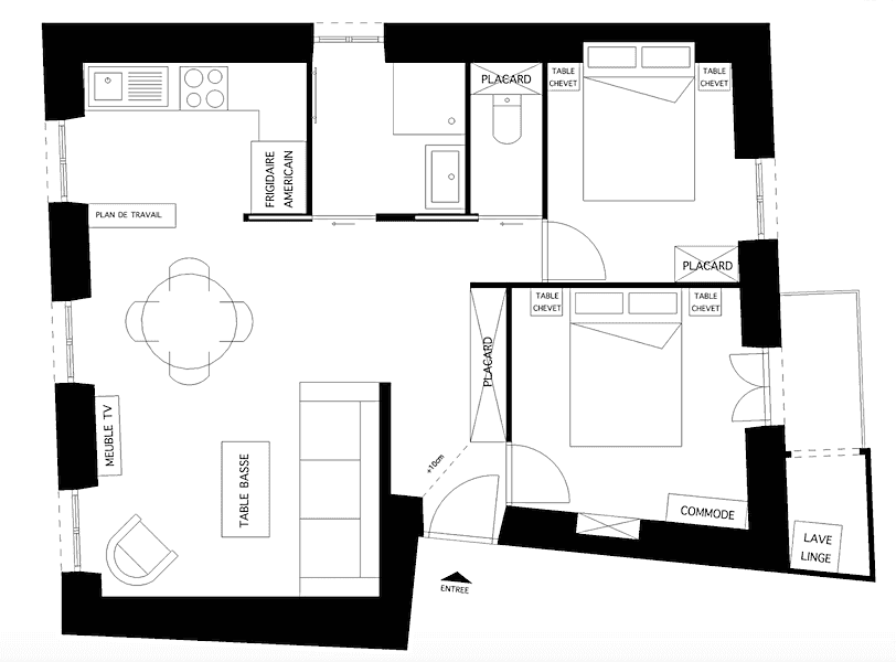
Appartement
53m²
Le projet :
Dans un espace de 53 m2 insérer :
- 1 séjour
- 1 salle à manger
- 1 cuisine
- 1 salle de bain avec douche
- 1 toilette séparé
- 2 chambres avec lits doubles

Le projeT :
Dans un espace de 53 m2 insérer :
- 1 séjour
- 1 salle à manger
- 1 cuisine
- 1 salle de bain avec douche
- 1 toilette séparé
- 2 chambres avec lits doubles
























